
$725/night + tax from May 1 to November 30
$550/night + tax from December 1 to April 30
4-night minimum stay
6 bedrooms + loft / 3 bathrooms
Sleeps 14
6 Queen beds, 1 Double Bed
3000 sq. ft.
2 Levels

Living Room

Living Room

Dining Area

Kitchen & Breakfast Bar

Laundry Room off the Kitchen

Entryway Mud Room

Bedroom #1 (main level)

Bedroom #2 (main level)

Bedroom #3

Bedroom #4

Bedroom #5

Bedroom #6

Full Bath #1 (main level)

Full Bath #2 (main level)

Full Bath #3

Backyard Deck

Front Deck

Absaroka Cabin Exterior

Absaroka Cabin in Winter


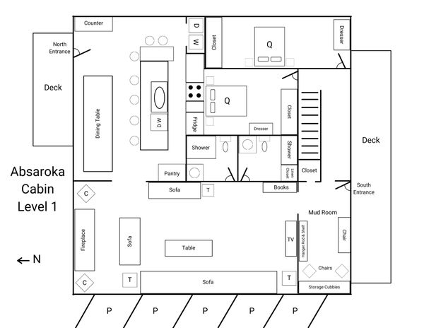
The Absaroka Cabin is 3000 square feet with a large kitchen and living area. Perfect for large families or for adult groups that still desire the privacy of their own bedroom. The lot has plenty of parking space on property. This is the perfect home base for all of your planned activities. The 60 inch flat screen TV has satellite and DVD/VCR combo for your relaxing enjoyment. The loft has 2 stationary twins with plenty of room for the kids to sleep or play games. The entry is a large mud room with lots of space for fishing gear, snowmobile helmets, skis and boots, or whatever else you might stash away there.
(Calendar may take a few seconds to load completely.)
For your convenience, you can view or download a copy of our Rental Agreement.
Cabins West Rental Agreement (pdf)
DownloadWe'd love to have you stay with us!
Book your reservation today by calling us at:
(406) 579-0406
If you still have questions, feel free to call us or send us a message.
The Centennial Suite is an 800 square foot, second floor apartment with a large kitchen and living area that's perfect for up to 4 people.
The Gallatin Cabin is 1200 square feet with a full kitchen and living area, and can accommodate 6 people.
The Teton Townhouse is our newest two-story, 2500 square foot rental that can sleep up to 12 people.
Cabins West Lodging
135 N. Faithful Street, West Yellowstone, MT 59758